Hanyang University Library Renovation
임승윤 / Seungyun Lim
Agenda
이 프로젝트는 한양대학교 에리카캠퍼스 학술정보관 리모델링 프로젝트다.
기존 학술정보관은 캠퍼스 중심부에 위치하여 좋은 접근성이라는 위치적인 장점을 가지고 있지만 층고가 다른 서고층으로 인한 동선적인 불편함이 있고, 지식습득의 방법이 개인적인 학습과 자료열람에만 한정되어 있다는 단점을 있다.
지식을 가진 학생들이 카페가 아닌 학술정보관에 전시를 보는, 책을 읽는, 아니면 그냥 휴식을 취하는 가벼운 목적으로 들어와 머물며 그 곳이 새로운 지식 공유의 장이 되길 바란다.
Concept
최근 새롭게 등장한 지식 전달과 관련된 프로그램인 라키비움은 도서관, 기록관, 박물관의 합성어로 컨텐츠를 개발하여 관객들에게 흥미를 유발하는 전시를 중심으로 관련된 지식을 다양한 방법으로 습득할 수 있는 구조이다.
또한 방대한 인적, 물적 자원을 가진 대학교에서 개인이 가진 지식을 다른 사람들과 공유하는 학습 공유는 새로운 지식을 창출 할 수 있도록 한다.
따라서 학습정보관을 다양한 컨텐츠가 기획되는 전시공간, 학교의 방대한 자료들을 저장하는 아카이브와 도서관을 배치하여 다양한 형태의 지식습득을 유도하며, 지식 습득 과정에서 학습 공유 공간을 통해 이루어지는 학습 공유로 더 많은 지식 창출이 발생하도록 하는 도서관으로 변화시키려 한다.
Drawings
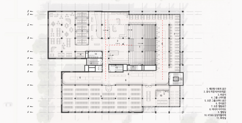
저층부에 전시공간과 아카이브, 고층부에 서가 중심의 공간을 배치하여 전시를 관람하며 관련된 학교의 다양한 자료를 열람하고 더 많은 지식을 얻기 위해 서가로 향하는 구조를 제안하였다.
1층에는 공용공간 위주로 학습 공유를 유도하였으며, 2층에는 열람실과 그룹스터디를 할 수 있는 공간을 중심으로 학습을 하는 과정에서 학습 공유를 할 수 있는 공간을 구성하였다.
그리고 1, 2층을 이어주는 대형계단 형태의 다목적 공간은 주요 이동동선으로 쓰이며 이용객들이 접할 기회를 늘려주어 평소에는 담소와 휴식의 공간으로 이용되고, 강연을 위한 공간이나 전시 등의 각종 문화행사를 위한 공간으로 이용되어 학습 공유의 공간으로 이용된다.
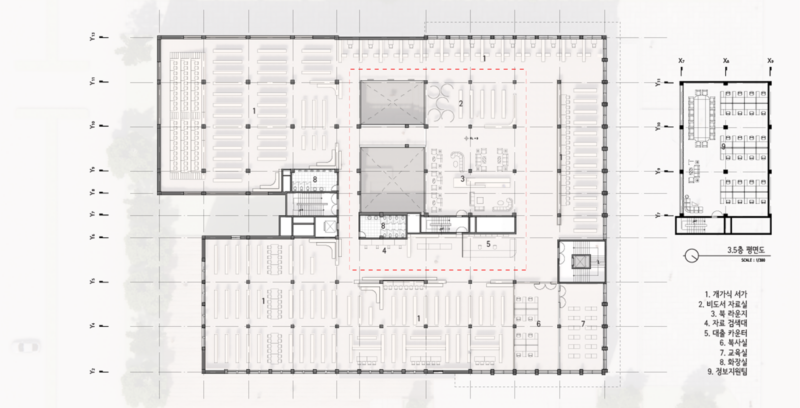
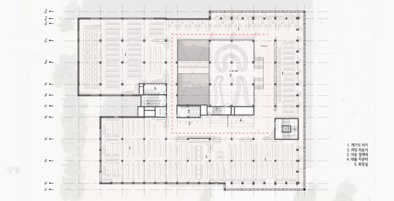
3, 4층의 서가 위주의 공간은 서가의 배치를 통해 많은 자료를 보관함과 동시에 다양한 열람공간을 제공하며 각 층에 있는 라운지는 이용객들이 자료와 가장 밀접한 공간에서 학습과 지식을 공유할 수 있도록 유도한다.
입면은 기존의 기둥을 최대한 활용하여 디자인 하였으며, 과거 2번의 증축을 통해 만들어진 3개의 매스를 재료와 디자인을 통해 분리시켰다.
Images
Panel
Software
Illustrator, Photoshop, Indesign, Rhinoceros, Enscape






























건축가
기저귀 필요합니다