CONNECT WITH THE FACTORY
승민수 / Minsu Seung
Introduction
위치 : 서울 성동구 아차산로 156
용도 : 복합 시설(오피스, 문화시설) / Cultural & Office
층수 : B1-4F
연면적 : 5,439 m2
Agenda
이 프로젝트는 성수동의 기존 공장을 리노베이션 하는 프로젝트다.
성수동의 가장 큰 특징이 기존에 공장들이 많았고 폐공장인 된 곳들도 많은 것을 볼수있었다. 리노베이션 하는 건물이 많았고 수제화거리등의 문화를 조성하여 공장들이 유지될 수 있도록 하는게 큰 특징이다. 또한 외부인들을 위한 공간들은 많은데 주민들을 위한 오픈 스페이스들이 부족하였다.
그래서 이러한 성수동과 업사이클링을 추구하는 ‘프라이탁’ 회사의 오피스를 만들어주면서 성수동만의 특징을 살릴 계획이다.
Concept
성수동의 가장 큰 특징이 기존에 공장들이 많았고 폐공장인 된 곳들도 많은 것을 볼수있었다. 리노베이션 하는 건물이 많았고 수제화거리등의 문화를 조성하여 공장들이 유지될 수 있도록 하는게 큰 특징이다. 또한 외부인들을 위한 공간들은 많은데 주민들을 위한 오픈 스페이스들이 부족하였다.
그래서 성수동만의 특징을 살려 기존 공장을 리노베이션하는 방향으로 설정하였다. 그리고 ‘프라이탁’이라는 업사이클링을 하여 가방을 만드는 회사를 선정해 기존 공장을 프라이탁이라는 회사의 프로그램에 맞춰 리노베이션 하였다.
Drawings
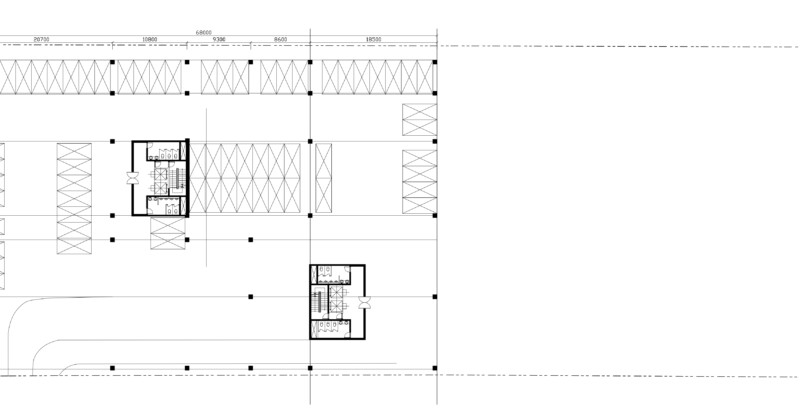
기존의 공장을 바꾸지 않고 최대한 유지해 성수동의 거리 특징을 유지하려고 했다. 그래서 기존 공장을 프라이탁의 제조공장으로 사용하여 공장의 역할을 그대로 하며 기존의 폐쇄적인 공장에서 사람들이 와서 구경할 수 있도록 관찰 공간을 만들었으며 사람들이 보는 것으로 끝나는게 아닌 체험할 수 있도록 체험 공간을 만들었다.
그리고 구경을 하면서 오픈 스페이스를 만들어 주민들이 와서 쉴 수 있게 하였다. 또한 왼쪽에는 오피스 공간을 만들어 오피스 사람들도 오픈 공간을 같이 사용할 수 있다.
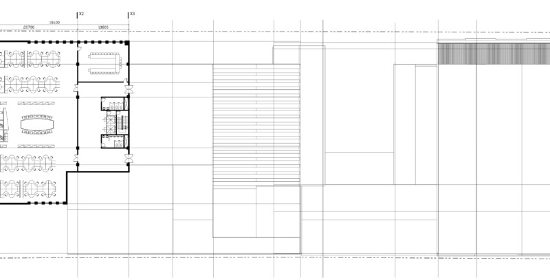
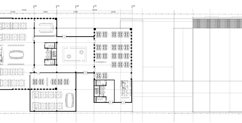
오른쪽에는 기존 공장 사이에 오픈 스페이스를 둬 주로 사람들이 사용할 수 있게 하고 왼쪽에는 실내에 오픈스페이스를 두어 오피스 사람들이 이용할 수 있도록 하였다.
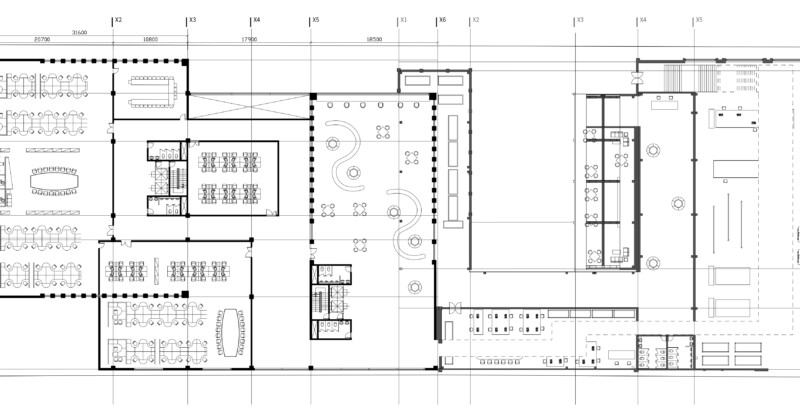
외부인 동선으로는 외부 오픈 스페이스를 두어 접근하여 제조공정을 본 후 체험공간을 거쳐 프리이탁 제품들을 둘러보고 나갈 수 있고 오피스 사람들은 왼쪽으로 들어와 사무 공간에 바로 갈수 있으며 2층으로 연결된 휴식공간으로 가서 외부인들을 볼 수 있으며 기존 공장과 통하는 통로를 만들어 위에서 볼 수 있다.
매스는 기존의 공장에서 옆에 부지를 확장하여 오른쪽에는 외부인들의 외부 오픈스페이스 오른쪽에는 오피스 사람들의 오픈 스페이스를 만들었고 면적은 기존 성수동 공장에서 느낄 수 있는 넓이를 사용하여 어디서나 성수동 공장의 공간감을 느낄 수 있게 하였다. 또한 기존의 건물과 새로운 건물들이 사용된곳에는 프레임을 밖에 보일 수 있게 배치해 기존 건물과 이어지는 부분을 강조하였다.
Plan
Image
Software
Illustrator, Photoshop, Indesign, Rhinoceros, Cad




























